X
Дом из клееного бруса Флорида
Площадь 389 м²
Этажность 2 этажа
Спальни 3 спальни
Терраса есть
24 192 389 руб Стоимость стенового комплекта с доставкой на участок
О проекте

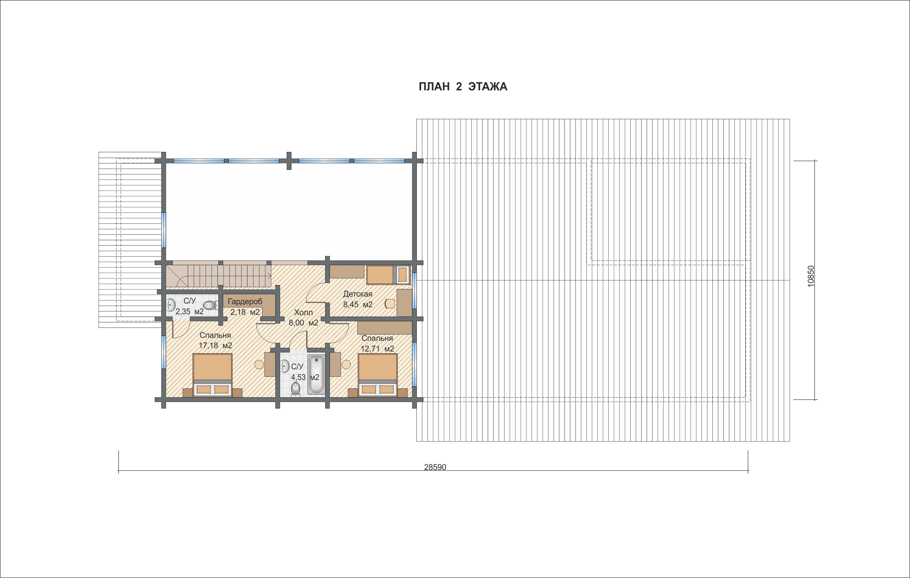
Полезная площадь проект «Флорида» - 389 кв.м. По проекту «Флорида» - двухэтажное здание, которое оснащено большой террасой – 103,67 кв.м., на которой можно расположить разные зоны отдыха.

 

В доме есть большая гостиная. Второй свет в совокупности с большой площадью остекления создает уютную атмосферу. Изюминкой проекта «Флорида» является наличие бассейна, площадь зоны бассейна – 87,82 кв.м. Рядом с бассейном есть все необходимые помещения для комфортного пребывания.

По проекту в здании есть 3 спальни на втором этаже, которые можно переоборудовать под любые другие помещения.
Дом «Флорида» оборудован двумя санузлами на втором этаже, одним общим санузлом на первом этаже и одним санузлом в зоне бассейна

Характеристики:
Габариты, м 28,6x10,9
Этажей 2
Площадь, м² 389
Спален 3
Второй свет Скандинавский
Тип строения дом
Материал Клееный брус,Кедр
Стиль Скандинавский
Характеристики:
Габариты, м 28,6x10,9
Этажей 2
Площадь, м² 389
Второй свет Скандинавский
Тип строения дом
Материал Клееный брус,Кедр
Спален 3
Стиль Скандинавский
Планировки
  • Базовые планировки
Базовые планировки Дом из клееного бруса Флорида 1
Базовые планировки Дом из клееного бруса Флорида 2
Хотите изменить планировку?
В любом проекте Вы можете изменить план дома под себя. Назначьте встречу с одним из наших архитекторов и на основании ваших идей он создаст индивидуальные планировки. Это бесплатно.
Что входит в стоимость
Проектирование
  • внешние виды
  • общая информация
  • планировки
  • спецификация окон и дверей
  • планы балок и монтажные схемы перекрытий
  • размеры и площадь кровли
  • развертки стен (с точными размерами и положением окон и дверей)
  • разбрусовка
Домокомплект
  • стеновой комплект: брус клееный 185(h)х205 мм (сосна) с конструкционным запилом чашек под архитектурно-планировочное решение Заказчика
  • подкладочная доска (лиственница)
  • балки клееные сосна/лиственница
  • комплектующие, фурнитура
  • доставка материалов
  • сборка домокомплекта
Дополнительные работы
Подготовительные работы на участке
  • организация проживания рабочих
  • организация временных сетей электричества и освещения площадки
  • организация биотуалета
  • вывоз мусора
Фундамент
  • проект КЖ
  • земляные работы
  • бетонные работы
  • гидроизоляционные работы
  • техническое оборудование
  • материалы
  • доставка технического оборудования и материалов
Кровля
  • стропильная система
  • комплектующие, фурнитура
  • доставка материалов
  • монтаж
  • металлочерепица (покрытие кровли)
  • водосточная система
  • система снегозадержания
  • свесы
  • работа по сборке кровли
Деревянные окна и двери
  • деревянные окна и двери собственного производства
  • обсадная доска
  • наличники, отливы
  • монтаж деревянных окон и дверей
  • доставка материалов
Инженерия и электрика
  • электромонтажные работы
  • подключение дома к централизованной электросети
  • установка систем отопления
  • монтаж систем водоснабжения, канализации
Внешняя отделка
  • шлифовка и окрашивание наружных стен
  • материалы
  • доставка материалов
  • работа по колеровке и шлифовке
Этапы сотрудничества
01
Знакомство
Знакомство с нашей компанией через:
  • рекомендации
  • интернет
  • социальные сети
  • офлайн выставки
и отправка заявки
02
Встреча
Встреча в нашем офисе, презентация нашей продукции и услуг
03
Экскурсия
По желанию проводим экскурсию на наши строящиеся объекты и производство
04
Индивидуальное предложение
Подготовка индивидуального предложения, которое включает: предварительный расчет стоимости проектирования, производства и строительства
05
Заключение договора
Согласование и подписание договора
06
Предоплата
Внос предоплаты удобным для Вас способом
07
Начало строительства
Начало работы по договору
Получить индивидуальный расчет проекта
Оставьте заявку, наши специалисты рассчитают проект под Ваши задачи и ответят на ваши вопросы
Дом
Отзывы
Сергей
17.01.2025
Заказывали в Кадрин домокомплект из клееного бруса для дома 150м2. Поставка была организована точно в срок, все элементы пронумерованы согласно проекту. Брус высшего качества, без сколов и трещин, идеальная геометрия. Разгрузка и складирование были произведены аккуратно, с соблюдением всех правил хранения.
Читать дальше
Максим (М)
07.10.2021
Кадрин нам построили 2 этажный дом из клееного бруса. Проект был индивидуальный, требований много, но компания справилась со всем замечательно. Качество материала прекрасное, строители на совесть работают. У нас все ровно, аккуратно, ничего не продувается
Читать дальше
Инна Медведева (Ж)
07.10.2021
Просто шикарный дом нам построила фирма Кадрин. Если в Москве выбирать, где купить дом из клееного бруса, однозначно сюда стоит обратиться. Мы сосну выбрали, смотрится дорого и красиво. Дерево чистое, строят аккуратно. Ни одной претензии
Читать дальше
Владимир Колесников (М)
07.10.2021
Долгое время мечтал о качественной и красивой бане, Кадрин осуществили мечту. Уже больше года стоит у нас прекрасная двухэтажная баня из кедрового клеевого бруса. Тепло держит прекрасно, так еще и выглядит как полноценный дом
Читать дальше
Лена Р (Ж)
07.10.2021
Выбирали, где баню заказать, остановились на фирме Кадрин, потому что друзья очень советовали. Вообще не пожалели, настолько четко и грамотно люди делают свою работу. Баня год уже стоит, обожаем ее
Читать дальше
Наталья Рожкова (Ж)
07.10.2021
Шикарные дубовые рамы на окна мы заказывали в Кадрин. Смотрятся просто потрясающе, запах дерева приятно разносится по всей квартире. Очень советую
Читать дальше
Никита (М)
07.10.2021
Заказывали брус для строительства, понравилось все: начиная от сервиса, заканчивая качеством материала. Привезли без задержек, аккуратно разгрузили. Дерево в идеальном состоянии
Читать дальше
Надежда (Ж)
07.10.2021
Обожаю нашу баню, которую конечно же строили Кадрин 2 года назад. Она сохранилась в идеальном состоянии, париться в ней одно удовольствие
Читать дальше
Мила Р (Ж)
07.10.2021
С компанией давно знакомы. Несколько лет назад заказывали дачный дом из кедрового клееного бруса, теперь окна в квартиру из сосны поставили. Лучшее качество 
Читать дальше
Илья Титов (М)
07.10.2021
Рядом с Кемерово у нас дача, Кадрин нам строили дом из бруса под ключ. У компании отлично организована работа на всех этапах, плюс ко всему работают у них профессионалы. Дому 2 года, будто вчера построили
Читать дальше
Нина И (Ж)
07.10.2021
Недавно достроили нашу баню из соснового бруса. Как же мне нравится! Определенно в Кемерово лучше компании строительной не найти
Читать дальше
Мирон Р (М)
07.10.2021
Изначально привлекла цена, когда рассчитали проект одноэтажного дома из клееного бруса. Позже сервис оценил, уделяли внимание каждой мелочи. Сейчас заселился в дом и хвалю качество. Идеально
Читать дальше
Виктория Сысоева (Ж)
07.10.2021
Приобрели себе участок 3 года назад, дом решили строить из кедрового клееного бруса. В Кадрин нам рассчитали индивидуальный проект, учитывая все наши пожелания. Дом получился достаточно большой, 150 кв м, но по цене оказалось вполне приемлемо. Построили нам его за 10 месяцев. Сейчас уже живем здесь, все нравится. Компанию советуем)
Читать дальше
Никита П (М)
07.10.2021
Для полного счастья не хватало бани. Обратился в Кадрин и построили мне чудесную баньку из соснового клееного бруса. Качество супер, а цена не сильно кусалась
Читать дальше
Ромашкина Оля (Ж)
07.10.2021
Несколько лет окна заказывали у фирмы, а в прошлом году участок купили и построили ним двухэтажный дом из соснового клееного бруса. Все супер
Читать дальше
Наталья П (Ж)
07.10.2021
Несколько лет назад брат с женой заказывали в Кадрин дом. Мы с мужем остались в таком восторге от внешнего вида и качества, что в прошлом году тоже решили построить коттеджный дом через эту компанию
Читать дальше
Артем Т (М)
07.10.2021
3 года назад купили участок и никак не могли начать строить дом. В прошлом году решил рассчитать стоимость небольшого дома из клееного бруса в Кадрин и так все понравилось, что решил заказать. Благодарен фирме за первоклассное качество материалов и самой работы, а еще за ценовую политику. В доме уже живем, все супер
Читать дальше
Ангелина Миронова (Ж)
07.10.2021
В Кадрин можно найти элитные дома из бруса по вменяемым ценам. У нас постоянно спрашивают, как мы построили такой дворец, а на самом деле приемлемо вышло
Читать дальше
Миша З (М)
07.10.2021
Лучшие бани из бруса в Новосибирске. Достроили нам ее в прошлом году, пользуемся постоянно и придраться вообще не к чему. Строили по индивидуальному проекту, внимание к каждой детали. Дерево чистое, выглядит красиво. А аромат какой
Читать дальше
Измайлова Диана (Ж)
07.10.2021
Посоветовали нам Кадрин, когда искали, где можно заказать в Новосибирске дом из клееного бруса из лиственницы под ключ. Вчера стройку завершили, нереальная красота вышла!
Читать дальше
Алексей Р (М)
07.10.2021
Для строительства бани заказывал здесь брус из кедра. Материал отличный! Усадка минимальная, не деформируется и не требует особых доп.затрат на отделку. Доставили все вовремя, аккуратно
Читать дальше
Николай (М)
07.10.2021
Качество клееного бруса высочайшее. Заказали здесь строительство дома, выбрали сосновый брус. Дерево чистое, стены ровные, ничего нигде не продувается. Даже отделки особой материал не требует. Красота
Читать дальше
Георгий Цаплин (М)
07.10.2021
Недавно достроили мою баню с мансардой. Она небольшая, но компания сделала каждый сантиметр площади полезным
Читать дальше
Анна (Ж)
07.10.2021
Здесь можно купить отличный клееный брус от производителя. В Новосибирске один из лучших вариантов по качеству и цене, сравнили все
Читать дальше
Антон Пешкин (М)
07.10.2021
Участок купили, но дом построить сам я бы не смог, решили заказать по индивидуальному проекту. В Кадрин отличный выбор клееного бруса и само отношение компании к клиентам радует. Подсказали как лучше сделать по проекту, построили идеально
Читать дальше
Анатолий (М)
07.10.2021
Дубовые рамы для окон потрясающе выглядят. В прошлом году нам их поставили, уже несколько друзей планируют и себе такие. Тепло держат хорошо, влагу не пропускают
Читать дальше
Валерия С (Ж)
07.10.2021
Живем в СПБ, дача в пригороде. Решили баню поставить, в Кадрин больше всего цены устроили и когда качество клееного бруса увидели – сомнений не осталось. Сделали нам все идеально, материал практичный, смотрится красиво. С удовольствием пользуемся
Читать дальше
Семен Г (М)
07.10.2021
Клееный брус из сосны отлично подошел для бани. Купили здесь, потому что друзьям нашим фирма дом строила, очень хорошо отзывались
Читать дальше
Роман (М)
07.10.2021
Кадрин строят лучшие дома из клееного бруса в Санкт-Петербурге. С фирмой знакомы давно и очень хорошо. У нас друзья здесь дом и окна заказывали, потом мы насмотрелись и баню себе у них купили. Шикарного качества сосновый брус. Минимум просадки, смотрится аккуратно даже без отделки, а запах дерева не сравнить ни с чем.
Читать дальше
Вова П (М)
07.10.2021
Спасибо Кадрин. Построили дом из клееного бруса под ключ. Все четко и грамотно, без задержек
Читать дальше
Алексей Ш (М)
07.10.2021
Захотелось мне двухэтажную баню из клееного бруса, обратился в Кадрин. Проект быстро сделали, учли пожелания, подсказали как лучше. Баня идеальная вышла. Спасибо
Читать дальше
Маша Т (Ж)
07.10.2021
3 года назад искали где купить дом из клееного бруса. Не дачный, а для постоянного проживания. В Кадрин предложили массу вариантов, сделали проект по нашим размерам. За 10 месяцев построили 200кв. Получилось практично и красиво
Читать дальше
Наташа Н (Ж)
07.10.2021
Рассматривали на покупку элитные дома из клееного бруса. В Кадрин оказался большой выбор. Нам сделали личный проект по нашим размерам, подсказали, где и что разместить. За время стройки (10 месяцев она длилась) я была на объекте раз 15, всегда все идеально. В доме уже живем. Чувствуется качество и забота в каждом сантиметре
Читать дальше
Ярослав Синицын (М)
07.10.2021
Шикарную баньку из соснового бруса мне построила компания. 2 года паримся в ней каждые выходные и никаких деформаций, вообще будто только вчера сделали. Кадрин молодцы
Читать дальше
Алена Кравцова (Ж)
07.10.2021
Хочется поблагодарить Кадрин за выполненную работу. Заказывали у фирмы одноэтажную баню из клееного бруса и все нам сделали без единой заминки. Получилось очень красиво и сделано на совесть. Нам есть с чем сравнить, потому что дом мы заказывали у другой фирмы еще несколько лет назад и качество небо и земля, конечно
Читать дальше
Олег Р (М)
07.10.2021
В Кадрин заказывали оконные рамы из сосны в квартиру. Материалы у компании премиального качества. К тому же с точки зрения эстетики дерево не сравнится никогда с пластиком. Интерьер преображается моментально
Читать дальше
Никита Еремин (М)
07.10.2021
Заказывал здесь сосновый брус для дома. Доставку оформили быстро, привезли без задержек и аккуратно выгрузили. Материал приехал в отличном состоянии. Чистый, без трещин и прочих деформаций. Все понравилось, хорошая компания
Читать дальше
Орлова М (Ж)
07.10.2021
У меня родители в Кадрин баню заказывали, 2 года назад. Отлично все сделали, материал прочный, а смотрится стильно. А мы в прошлом году себе дом, наконец, заказали и вот неделю назад стройку закончили. И опять все на высшем уровне и в срок. Спасибо!
Читать дальше
Андрей Сергеев
07.10.2021
Проводим нашу первую зиму в доме из клееного бруса (сосна) и смело могу сказать, что в доме очень тепло. Еще раз спасибо Кадрин! Выполнили все качественно, учитывая все мои требования. Рекомендую.
Читать дальше
Ольга Амелина
07.10.2021
Хочу выразить благодарность компании Кадрин за строительство нашей бани. Лично я считаю, что в Бийске это одна из самых надежных компаний для строительства из клееного бруса. При этом цена приемлемая. Ребята все работы выполнили под ключ и вовремя. Баня выглядит шикарно! Все друзья восхищаются.
Читать дальше
Екатерина Шарпова
07.10.2021
Мы выбрали проект бани из готовых проектов на сайте (выбор очень большой). Мы остановились на бане «Раума». По строительству хочу отметить высокий профессионализм ребят, работы велись точно по срокам. Я впервые познакомилась со строительством из клееного бруса, и, честно говоря, результат превзошел все мои ожидания. Баня получилась точь-в-точь как на картинке, даже еще лучше. Внутри выглядит очень стильно. И я боялась, что 65 квадратов маловато, но, оказалось, что для нашей компании это в самый раз!
Читать дальше
Дмитрий Строганов
07.10.2021
Я очень долго искал подрядчика в Бийске на строительство дома из клееного бруса, т.к. не каждая фирма берется выполнить все этапы под ключ. А компания Кадрин как раз это реализует. Цены у Кадрин не завышенные, а качество на высоте, брус гладкий и ровный, выглядит очень достойно.
Читать дальше
Петр Н.
07.10.2021
В Бийске лучшего производителя клееного бруса точно не найдете. Рекомендую Кадрин!
Читать дальше
Марина Жукова
07.10.2021
Я нашла компанию Кадрин, когда еще искала, где заказать проект дома из клееного бруса. Здесь на сайте очень много интересных проектов. Мы с мужем выбрали один, но немного его переделали для себя. Строительство также доверили этой компании. Я немного переживала, как будет выглядеть брус внутри, но оказалось совсем неплохо. Стены гладкие, углы все ровные, не к чему придраться. И, конечно, отдельное спасибо за приятную стоимость дома)
Читать дальше
Евгений Галкин
07.10.2021
Живем в Челябинске, но все никак руки не доходили до бани. Жена обратилась в компанию Кадрин, здесь и проект подготовили, как я хотел, и построили все «под ключ». Оперативно, четко, без лишних вопросов. Спасибо.
Читать дальше
Олег Петров
07.10.2021
Давно знаю компанию Кадрин, немного знаком с их производством, поэтому баню покупал у них, под ключ. Проект тоже взял здесь, сразу готовый. Очень доволен результатом. Все-таки бани из клееного бруса выглядят очень презентабельно.
Читать дальше
Ирина Васильева
07.10.2021
Хочу выразить свою благодарность сотрудникам фирмы Кадрин. Мы выбрали сосновый клееный брус. По стоимости оказалось даже меньше, чем я рассчитывала, т.к. Кадрин сами производители и цены у них приемлемые. Дом получился просто шикарный! Стены гладкие, красивые. В доме очень тепло. Еще раз спасибо!
Читать дальше
Галина Серова
07.10.2021
Мы переехали в новый дом в сентябре, но я до сих пор не могу нарадоваться! Как же мне нравится дом из бруса – все идеально ровное, спилы все одинаковые, никаких неровностей. Хорошо, что есть такая компания в Челябинске, которая все выполняет под ключ. Мы и проект готовый здесь купили, и строительство полностью ребята выполнили.
Читать дальше
Ольга Пименова
07.10.2021
Год назад мы определились с тем, что хотим с мужем дом именно из клееного бруса. Рада, что мы в Челябинске нашли эту компанию Кадрин. Здесь все выполняют «под ключ». Мы выбрали проект дома из готовых, заключили договор и вот, наконец, наш дом готов! Превзошел все ожидания! Дом большой, теплый, брус гладкий, ровный. Все выполнено очень аккуратно. И цена оказалась приемлемой. Спасибо.
Читать дальше
Владимир Иванов
07.10.2021
Я давно присматриваюсь к домам из клееного бруса, но все как-то сомневаюсь. Поэтому решил на новом участке начать с дачи из бруса. Проект купил в Кадрин и здесь же заказал все под ключ. Однозначно остался доволен. В Кадрин работают профессионалы, причем не только строители, но и менеджеры, с которыми было очень приятно общаться на моменте заключения договора. Молодцы!
Читать дальше
Анна Липкина
07.10.2021
Когда решили строить дом, конечно же всем занималась я, не муж). Он только очень хотел именно клееный брус. Я много разных компаний пересмотрела, которые делают дома под ключ. Остановилась на Кадрин и не ошиблась. Во-первых, качество самого бруса на высоте (кстати у Кадрин свое производство, что добавляет надежности); а во-вторых, организация строительства заслуживает похвал. Это не первая стройка, за которой я слежу), и могу сказать, что ребята работали очень слаженно, каждый знал свое дело. Наверное, поэтому результат нас очень порадовал. Спасибо.
Читать дальше
Иван Крючков
07.10.2021
Хочу поблагодарить компанию Кадрин за наш новый дом. Оказалось, что купить дом из клееного бруса не так дорого, да еще и очень удобно. Сотрудники Кадрин помогли подобрать проект по нашим желаниям. Строительство также доверили этой компании. Более чем доволен. На стройку приезжал раз в две-три недели, но при этом все выполнено на высоком уровне, не нужно было стоять и следить. Ребята профессионалы своего дела. 
Читать дальше
Вероника Кулагина
07.10.2021
Большое спасибо Кадрин за строительство нашего семейного гнездышка)) Теперь я просто не хочу никуда выезжать из дома, настолько он мне нравится) Клееный брус высочайшего качества, смотрится шикарно, в доме зимой тепло, ни откуда не дует. Строили по индивидуальному проекту. Все комнаты продуманы.
Читать дальше
Александр Опушкин
07.10.2021
На сайте Кадрин большой выбор проектов домов из клееного бруса. Свой проект купил именно здесь. А вот строительство заказал в другом месте и сильно пожалел, напортачили на сборке(. Пришлось обращаться в Кадрин за помощью, здесь и правда ребята молодцы, хорошо разбираются в своем деле.
Читать дальше
Вера Николаева
07.10.2021
Купили участок, и муж загорелся клееным брусом. Я, честно, думала, что стоимость дома из клееного бруса под ключ будет заоблачной. Но оказалось совсем не так. Все зависит от площади. Мы строим небольшую дачу около 100 кв м. Менеджеры компании Кадрин очень вежливые, подобрали нам подходящий проект, помогли с рабочими вопросами. Сейчас строимся (тоже Кадрин). Работой очень довольны. Поскорее ждем окончания. 
Читать дальше
Женя Кудрина
07.10.2021
Мы давно живем в Челябинске, в квартире, и тайно мечтаем о доме).Сейчас активно занялись с мужем вопросом строительства дома, и выбрали для себя дом из клееного бруса. И проект, и строительство заказали в Кадрин. Пока никаких претензий, очень всем довольны!
Читать дальше
Данила Рыбкин
07.10.2021
Мы только закончили сотрудничать с Кадрин, хочу выразить свою благодарность! Мы заказали здесь шале из бруса под ключ. Работы велись в срок, материалы использованы все очень качественные. Оцениваю работу компании на твердую пятерку.
Читать дальше
Игнат Федоров
07.10.2021
У нас в Екатеринбурге не так много фирм, кому можно доверить строительство дома из клееного бруса. Кадрин проверенная компания, поэтому мой дом сейчас строят именно эти ребята. Брус взял лиственницу, качество шикарное.
Читать дальше
Артем Коркин
07.10.2021
Я купил баню из клееного бруса в Кадрин. Результатом очень доволен. Ребята все выполнили в срок, работу свою знают. И по Екатеринбургу здесь отличные цены.
Читать дальше
Кристина Терехова
07.10.2021
Давно мечтала о бане на участке, мужа долго просила, он все никак не брался. В итоге я сама нашла Кадрин, здесь очень интересные проекты, т.к. я мечтала именно о двухэтажной бане. И для меня лично огромный плюс - это то, что здесь все выполняется под ключ. Не надо искать еще кого-то, в Кадрин все работы выполняют, причем очень качественно. И буквально через месяц уже будем париться)
Читать дальше
Михаил Баландин
07.10.2021
Наконец-то мы въехали в дом, поэтому хочу написать отзыв-благодарность. Компания Кадрин выполнила все работы. Хочу отметить, что мы пришли со своим готовым проектом дома из клееного бруса, но в Кадрин нам не отказали и взялись за наш проект. В Екатеринбурге это чуть ли не единственная компания, которой можно смело доверить полное строительство.
Читать дальше
Варвара Красникова
07.10.2021
Сами живем в блочном доме, а вот дачу купили в Кадрин из клееного бруса (дача под Екатеринбургом). Могу сказать, что дом очень теплый, может даже теплее блочного). А про внешний вид вообще не могу молчать - дача получилась шикарнее дома) Специалисты Кадрин просто молодцы!
Читать дальше
Павел Пешкин
07.10.2021
Хороших производителей клееного бруса не так много. Очень рад, что в Екатеринбурге есть представительство компании Кадрин, у них как раз есть свое производство. Качество бруса превосходное. Купили у них дом из клееного бруса, под ключ. Результат, как я и ожидал, отличный!
Читать дальше
Ксения Бартулина
07.10.2021
Только в Кадрин мне смогли создать проект дома в стиле шале, как я мечтала! Безумно этому рада. Строительство тоже решила доверить им. Пока только начало, но я не сомневаюсь, что будет отлично. Я посмотрела дома из клееного бруса, которые строили в Кадрин, и мне очень понравилось.
Читать дальше
Егор Лебедев
07.10.2021
Не думал, что смогу купить домокомплект в Екатеринбурге, но все-таки купил здесь. Строители уже приступили к работам. Посмотрел на качество бруса - был приятно удивлен.
Читать дальше
Игорь Маринюк
07.10.2021
Остался очень доволен работой специалистов компании Кадрин. Я заказал здесь проектирование дома из бруса (у меня было очень много требований, и готовые проекты совершенно не подходили). Проект получился и удобным, как я хотел, и стильным.
Читать дальше
Мария Алешкина
07.10.2021
Мне очень понравилась готовые проекты из клееного бруса на сайте Кадрин. Прямо не могла выбрать) Спасибо менеджерам компании, помогли подобрать самый подходящий вариант и доработать его по нашим желаниям. Получился идеальный дом! Осталось его построить)
Читать дальше
Максим Починков
07.10.2021
Скажу честно, до последнего не верил, что дом из клееного бруса подходит для постоянного проживания. Пошел на поводу у жены и думал, что строим себе летнюю дачу. Но, к моему удивлению, дом очень теплый. Вот пошел второй месяц зимы, морозы, а из дома и выходить не хочется, настолько комфортно и хорошо в нем. Строились в Кадрин.
Читать дальше
Андрей Яковлев
07.10.2021
Купил в Кадрин коттедж из клееного бруса. Ребята все выполнили быстро, под ключ. Брус качественный, неудивительно, они же и производители. И хочу отметить, что цена не завышена, приемлемая для коттеджа.
Читать дальше
Анатолий Скубыра
07.10.2021
Купил дом из бруса в Кадрин, все работы здесь выполнили под ключ. Качество материала отличное. Я взял брус из кедра, цена отличная, наверное, потому что Кадрин и есть производитель, держат цены.
Читать дальше
Дмитрий Аленичев
07.10.2021
Рад, что выбрал компанию Кадрин  для строительства бани из клееного бруса. Они взялись построить по моему проекту. На стройку я ездил не часто, из-за работы не мог. Но ребята работали очень ответственно, никаких задержек по срокам. Четко знают свое дело. Про качество бруса из кедра хочется написать отдельно - превосходно!
Читать дальше
Александр Борисов
07.10.2021
Благодарен компании Кадрин за щепетильный подход к каждому клиенту. Я перебрал большое количество фирм, искал, кто выполняет индивидуальные проекты домов из клееного бруса, но только в Кадрин менеджеры отнеслись к моим пожеланиям серьезно (сложный проект), выполнили все мои требования. Однозначно их проектировщиков могу советовать. Наверное, по строительству тоже к ним обращусь.
Читать дальше
Наталья Сергеева
07.10.2021
В Кадрин очень большой выбор проектов загородных домов. Сначала меня смутило, что они все из клееного бруса, но потом я почитала, поспрашивала знакомых, оказывается, это долговечный материал, подходит для круглогодичного проживания. Поэтому проект у меня теперь есть, осталось его реализовать. Планирую это сделать в Кадрин.
Читать дальше
Анна Вербицкая
07.10.2021
Спасибо специалистам компании Кадрин! Вы построили нам очень красивый дома, жаль нельзя прикрепить фото. Дом из клееного бруса, брус лиственница - качество отличное, все идеально ровное. Площадь дома получилась 120 кв м. Дом теплый, уже проверили сильными морозами. Все соседи завидуют)
Читать дальше
Анна Смирнова
07.10.2021
Рада, что мы обратились именно в компанию-производителя бруса кадрин. Качество материала превосходное, даже мой муж, который все критикует, не смог придраться) Нам построили двухэтажный дом из клееного бруса. Цена порадовала, дешевле, чем у конкурентов, а качество выше! Работы были все выполнены в срок.
Читать дальше
Арсений Баженов
07.10.2021
Не в каждой компании можно найти такие эксклюзивные дома из клееного бруса, как в Кадрин. У меня нет проблем с деньгами, но несмотря на это, все равно долго не мог найти подходящий вариант. Специалисты Кадрин - профессионалы своего дела. Помогли мне реализовать в жизнь мои идеи. Подготовили хороший проект. В итоге сейчас строительство подходит в концу, и результатом я очень доволен! Брус превосходного качества, привезен с Алтая. У компании Кадрин свое производство, поэтому они отвечают за качество «головой». Смело могу рекомендовать эту компанию при строительстве элитного дома.
Читать дальше
Кирилл Беляев
07.10.2021
Спасибо компании Кадрин. Подготовили для нашей семьи проект дома в стиле шале. Дом будет выполнен из клееного бруса. Думаю, что и строительство закажем здесь же (почитал отзывы). Цены приемлемые, общаться с менеджерами очень приятно, отвечают даже на самые мои глупые вопросы спокойно)
Читать дальше
Валентина Михайлова
07.10.2021
Мы живем в Екатеринбурге и почему-то очень долго не могли определиться, где построить баню из клееного бруса. Очень рада, что нашли фирму Кадрин. Спасибо большое сотрудникам! Все выполнили очень быстро, качественно. Клееный брус выглядит даже лучше, чем я себе представляла. И цена порадовала.
Читать дальше
Вера Сергеева
07.10.2021
Хорошо, что мы обратились именно сюда в Кадрин. Нам нужен был проект дома из клееного бруса с сауной, и никто толком не мог объяснить, как все рационально сделать и правильно по технике безопасности. Теперь я убеждена, что в Кадрин работают профессионалы. Все разложили «по полочкам», объяснили, нарисовали. Осталось только построить. Все надежды на вас!)
Читать дальше
Мария Карпова
07.10.2021
Мы с мужем давно мечтали купить дом из клееного бруса. Я рада, что мы выбрали Кадрин. Нам уже подготовили индивидуальный проект (я взяла за основу проект с сайта и попросила добавить кое-что для себя). Теперь надеюсь, чтобы все получилось, как на картинке) Строительством тоже займутся сотрудники Кадрин, обещают все выполнить под ключ.
Читать дальше
Фёдор Третьяков
23.09.2021
строили дом из клееного бруса, привлекло собственное производство и то что используется древесина с Алтая, это опять же качественно и такая древесина больше ценится, чем обычная. Работают хорошо, постоянно были на связи с момента первого обращения до получения ключей. Дом действительно "Под ключ" получился, осталось только завезти мебель и можно жить. По цене/качеству Кадрин одна из лучших компаний как по мне. Все сложилось: отлинчые материалы и хороший сервис, рекомендую.
Читать дальше
Алексей
11.08.2021
честно скажу, что строительство дома из клееного бруса я бы себе никогда не доверил. Очень много факторов по древесине, технологии строительства нужно учесть. Мне дом строили в Кадрин, Москва. Усадка была, но незначительная, к качеству вообще никаких претензий
Читать дальше
Дмитрий Суворов
21.07.2021
Живу в Москве, но сам я из небольшого города Саратова. Москва для работы, для жизни хотелось иметь какое-то такое свое место для жизни, для семьи (у меня трое детей). Было принято решение строится в ближайшем подмосковье. Пообщавшись с несколькими соседями по участку понял, что уютный дом для меня - это дом из дерева. Обратился в несколько организаций, по итогам выбрал клееный брус и компанию Кадрин. Хочу сказать, что цены не завышают, при этом брус предлагают очень хорошего качества, древесина вся чистенькая, выглядит как на картинке. Выбрали материал, спроектировали дом, осуществили монтаж, все на наивысшем уровне было сделано. Очень уютный, а главное безопасный для детей дом, куда приезжаешь морально отдохнуть от тяжелой трудовой недели.
Читать дальше
Мирослава Валиева (Ж)
01.01.1970
В Кадрин точно знают, как строить отличные дома. Фирма использует качественный клееный брус, и специалисты там работают отличные. Наш большой дом построили за 10 месяцев по индивидуальному проекту, который компания сделала. Материал выбрали лиственницу. Смотрится очень красиво, в доме находиться уютно
Читать дальше
Сергей
01.01.1970
Поставили деревянные окна в детскую. Понравилось что компания использует только безопасные материалы и краски. Монтажники вежливые, установили аккуратно
Читать дальше
Михаил
01.01.1970
Выбрали типовой проект, но внесли небольшие изменения. Понравилось, что компания пошла навстречу и адаптировала проект под наши пожелания. Все работы выполнены в срок, претензий к качеству нет. Отдельное спасибо за помощь в планировке участка.
Читать дальше
ТестУм
01.01.1970
Читать дальше
тестум
01.01.1970
Читать дальше
ТестУм
01.01.1970
Читать дальше
ТестУм
01.01.1970
Читать дальше
ТестУм
01.01.1970
Читать дальше
ТестУм
01.01.1970
Читать дальше
Построенные дома
Дом из клееного бруса Усадьба со спа комплексом
Дом из клееного бруса Можайский район
Дом из клееного бруса Серпуховский район
Загородный дом в Подмосковье
Дом с бассейном в Московской области
Частный дом в Подмосковье
Баня в Подмосковье
Дом из клееного бруса Ресторанный комплекс на Алтае
Получить индивидуальный расчет проекта
Оставьте заявку, наши специалисты рассчитают проект под Ваши задачи и ответят на ваши вопросы
Просмотр
Похожие проекты
Дом из клееного бруса Шамони
2 этажа 240,77 м²
Дом из клееного бруса Брюссель
2 этажа 424,61 м²
Дом из клееного бруса Усадьба со спа комплексом
2 этажа 1204 м²
Дом из клееного бруса Валенсия
2 этажа 276 м²
Дом из клееного бруса Неаполь
2 этажа 386 м²
Дом из клееного бруса Каширский район
2 этажа 295 м²
Получить индивидуальный расчет проекта
Оставьте заявку, наши специалисты рассчитают проект под Ваши задачи и ответят на ваши вопросы
Акции
Подробные расчет сметы на строительство - бесплатно!
Подробные расчет сметы на строительство - бесплатно!
Скидка на деревянные окна и двери при строительстве дома под ключ у нас!
Скидка на деревянные окна и двери при строительстве дома под ключ у нас!
Подборка топовых проектов - бесплатно!
Подборка топовых проектов - бесплатно!
Почему клееный брус?
Клееный брус — современный, эстетичный и безопасный материал. Благодаря высокотехнологичности его производства — время на монтаж дома сокращается, а также появляется возможность круглогодичного строительства, чем не могут похвастаться другие технологии.
Брус
Экологичен (мы используем сертифицированную продукцию AkzoNobel)
Минимальная усадка, не требует долгого ожидания для продолжения работ
Выдерживает большую нагрузку благодаря своим техническим свойствам
Не требует больших дополнительных затрат на отделку
Не деформируется
Низкий коэффициент теплопроводности

Наши преимущества

Более 23 лет на рынке домостроения
Мы построили уже более 700 домов по всей России и странам СНГ. У нас большой опыт за плечами, который позволит нам реализовать все ваши мечты в реальность, чтобы у вас получился уютный и надёжный дом.
Собственное производство
На нашем предприятии осуществляется полный цикл производства клееного бруса и деревянных окон - от распиловки круглого леса до изготовления и упаковки конечного изделия.
Экскурсия на наш объект
Перед тем как начать сотрудничество с нами, мы приглашаем вас посетить наш объект, где вы сможете получить наглядные ответы на все ваши вопросы.
Контроль в реальном времени
Мы устанавливаем камеры на участках. Вы сможете в режим реального времени следить за строительным процессом вашего дома, через мобильное приложение.
Мы выполняем полный перечень работ
Начиная с проектирование и производства, заканчивая внутренней отделкой вашего дома.
Более 23 лет на рынке домостроения
Мы построили уже более 700 домов по всей России и странам СНГ. У нас большой опыт за плечами, который позволит нам реализовать все ваши мечты в реальность, чтобы у вас получился уютный и надёжный дом.
Собственное производство
На нашем предприятии осуществляется полный цикл производства клееного бруса и деревянных окон - от распиловки круглого леса до изготовления и упаковки конечного изделия.
Экскурсия на наш объект
Перед тем как начать сотрудничество с нами, мы приглашаем вас посетить наш объект, где вы сможете получить наглядные ответы на все ваши вопросы.
Контроль в реальном времени
Мы устанавливаем камеры на участках. Вы сможете в режим реального времени следить за строительным процессом вашего дома, через мобильное приложение.
Мы выполняем полный перечень работ
Начиная с проектирование и производства, заканчивая внутренней отделкой вашего дома.